- 物件番号:3492
富士急川奈別荘地 夢舞台・夢舞台アネックス
敷地内には昭和57年8月に建てられた「夢舞台」と平成19年12月に建てられた「夢舞台アネックス」の2棟で構成されます。
表示の延べ床面積は2棟の合計面積となっております。
「原広司+アトリエファイ建築研究所」設計による景色に調和した外観、相模湾と富士山の眺望を独り占めできる住環境はまさに夢舞台です。
- ゴルフ場に近い
- リゾートライフ
- 収納
- バス停徒歩圏(15分以内)
- 自然と暮らす
- 平坦地
- ペットと暮らす
- 山を望む
- ペット可
- 永住したい
- オーシャンビュー
- 温泉で癒されたい
- 海が見える家
- トイレ(2ヵ所以上)
- 開放感
- 駐車場有
- カースペース有(2台以上)
- 眺望を楽しむ
- カースペース有
- 日当たり良好
- 家庭菜園ができる
- 森に囲まれたい
- 3LDK以上
- 富士山が見える
- 別荘地内
- 海の眺望を楽しむ
- 花火を望む
- 温泉引き込み可
- ウッドデッキ
【夢舞台アネックス外観】ガラスに覆われた有機的建築です
- 価格
- 19,800万円 ¥ローンシミュレーション
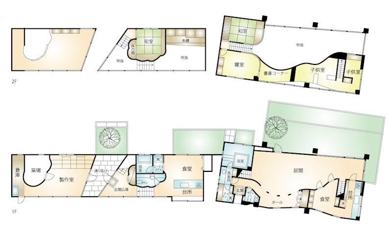
- 間取り
- 5SLDK
- 建物面積
- 244.64m²
- 土地面積
- 982m²
- 静岡県伊東市川奈
- 伊豆急行線「川奈(静岡)」駅 徒歩約24分
- 木・鉄筋コンクリート造 2階建

【眺望】富士山と相模湾のコラボレーションを臨みます

【リビング】キッチンから桜を眺めることができます

【ダイニング】北面と南面がガラス貼りとなっています

【キッチン】いつも明るいオープンキッチンです

【浴室】ゆったりと疲れを癒して下さい

【玄関ホール】観光施設に来たような気持になります

【その他内観】開放感のある空間です

【工房】陶芸などの趣味にお使いいただけます

【夢舞台アネックス玄関】自然と一体になっています

【夢舞台外観】桜とのコラボレーションです

【リビング】とても明るく開放感があります

【キッチン】3口ガスコンロ付きのキッチンです

【浴室】浴室からも四季を感じることができます

【洗面台】広い洗面スペースになっています

【トイレ】とてもきれいにお使いです

【寝室】暖かい日差しが差し込みます

【その他内観】2階から見下ろすリビングです

【和室】和室にもこだわりがあります

【玄関】曲線が建物の無機質感を無くしています

【バルコニー】夢舞台という名がぴったりです

【眺望】バルコニーが富士山を眺める絶景スポットです

【眺望】海・山・桜の眺望は他にはありません

【駐車場】敷地内には2台駐車可能です
物件詳細
| 所在地 | 静岡県伊東市川奈 | ||
|---|---|---|---|
| 交通 | 伊豆急行線「川奈(静岡)」駅 徒歩約24分 | ||
| 建物面積 | 244.64m² (74.00坪) | 土地面積 | 982m² (297.05坪) |
| 構造・階数 | 木・鉄筋コンクリート造 2階建 | ||
| 私道負担面積 | 無 | ||
| セットバック | 不要 | ||
| 設備 | 照明付き、3口以上コンロ、オーブン、オープンキッチン、ガスキッチン、ガスコンロ、グリル、システムキッチン、対面式キッチン、給湯、エアコン、温泉引き込み可、インターホン、フローリング、室内洗濯機置場、クローゼット、シューズボックス、押入、収納有、シャワー、トイレ2ヶ所、トイレ有、バス・トイレ別、バス有、温水洗浄便座、洗面化粧台、洗面所にドア、洗面所に窓、洗面所独立、脱衣所、暖房便座、浴室2ヶ所、浴室に窓、ワイドバルコニー、家庭菜園、フリースペース、リビング吹抜け、玄関ポーチ、玄関ホール、畳コーナー、吹抜け、天井高2.5m以上、天井高2.7m以上、天井高3m以上、平置駐車場 | ||
| 特徴 | 2面採光、陽当たり良好、オーシャンビュー、リゾート向き、花火大会鑑賞、眺望良好、通風良好、山が見える、閑静な住宅街、高台に立地、緑豊かな住宅地、周辺交通量少なめ、ゴルフ場が近い、眺望がいい | ||
| 現況 | 利用中 | 取引態様 | 仲介 |
| 引渡条件 | 相談 | 引渡時期 | 相談 |
| 築年月 | 昭和57年(1982年)8月 | 土地権利 | 所有権 |
| 備考 | 契約不適合責任免責 | ||
| その他費用 |
管理費 : 88,671円/年 下水料金 : 21,780円/年 |
||
|---|---|---|---|
| 都市計画区域区分 | 非線引き区域 | 地目 | 山林(登記簿) |
|---|---|---|---|
| 用途地域 | 無指定 (建ぺい率/20%・容積率/60%) | ||
| 地勢 | 高台 | ||
| 接道状況 | 一方 | ||
| 法令制限 | 景観法、宅地造成及び特定盛土等規制法、自然公園法 | ||
| 駐車場 | 有(敷地内)、駐車場空き台数2台 | ||
- 更新日:2026年05月13日 次回更新予定日:2026年05月27日
- ※間取りの「S」はサービスルーム(納戸)です
月々のお支払いの目安を調べる
(ローンシミュレーション)
| 毎月の返済額 | - 万円 |
|---|---|
| ボーナス月の返済額 | - 万円 |
| 支払い総額 | - 万円 |
〈提携ローンのご案内〉三菱UFJ銀行利用
- ※融資限度額/売買価格の100%以内で最高10,000万円(別荘購入の場合、売買価格の80%が上限です)
- ※融資事務手数料/借入額の2.2%
- ※「金利」については、ご利用を予定されている金融機関等にご確認の上、ご自身での入力をお願いいたします。
- ※初期設定で自動入力されている値は、実際の金融機関等における貸出金利とは何ら関係がなく、実際の金融機関等における貸出金利を何ら保証するものではありません。
- ※返済方法「元利均等返済」にて算出しております。
- ※入力された金利を35年運用した場合の計算結果を表示しています。その他ローン諸経費がかかります。
- ※実際にお借り入れの際は金融機関等に、必ずご自身でご確認をお願いいたします。条件によってお借り入れができないことがあります。
この物件についてのお問い合わせ
ロイヤルリゾート 伊東駅前店
〒414-0002 静岡県伊東市湯川3-11-2 サンタイビル1F


















売主様より
平成19年に建設された夢舞台アネックスはダイニングのどこからでも日が入りますのでとても暖かいです。
ウッドデッキに出ていただければ、非日常的な感覚になる素敵な眺望が広がります。
お庭も季節によって桜や紫陽花などをお楽しみいただけますので、文章や写真ではお伝えすることのできない魅力が詰まっております。
担当者より
「原広司+アトリエファイ建築研究所」の設計による実像と虚像を重ね合わせた有機的建築です。
リビングやダイニングが北側に位置していても、建物がガラスに囲まれているので、日当たりが良くとても暖かいです。
相模湾、富士山、花火を同じ場所で独占できる素敵な眺望はなかなか探すことができません。
まずは穏やかな周辺環境や素敵な現地をご覧下さい。